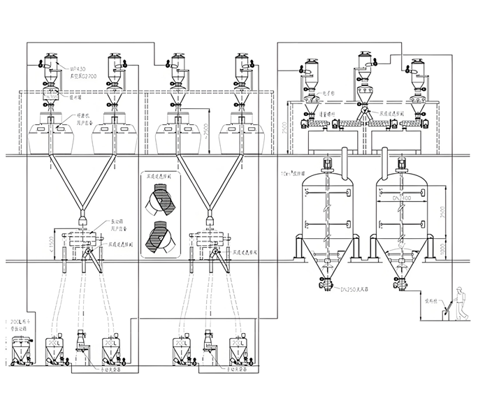
Case of Special Rubber Convey
Case of Special Rubber Conveying
Over a decade of industry experience gives customers sufficient reasons to trust us.
Providing excellent solutions and delivering the highest-quality products to every customer.
We offer a comprehensive service process—starting from inquiry, covering design, production, delivery, and after-sales service—and provide end-to-end support throughout the entire journey.
A perfect blend of global experience andexpertise to further our focus on technology.

Shanghai Guanjiang Machinery Equipment Co., Ltd is a technology-based enterprise specializing in the R&D of dust-free and automatic unpacking & conveying equipment for powders, as well as the design and manufacturing of powder equipment.We are committed to providing solution services for dust-free powder processing equipment and systems for various powder and solid raw materials to customers in the food and beverage, pharmaceutical, chemical engineering, rubber, and energy industries. We always provide customers with high-quality products, technical support, and comprehensive after-sales service....
One-stop service from you contact us
Manufacturing experience
A team of professional senior engineers provides one-stop service solutions for sentry booth development.
Strict quality inspection
Accurate sample preparation before production, to ensure the accuracy of dimensional data Good workmanship, good quality.
Products widely used
To provide our customers with better and more practical products.
After-sales service system
24-hour online customer service at any time to respond, so that you worry!
Our company's successful projects